Villa Banalia

Project profile:
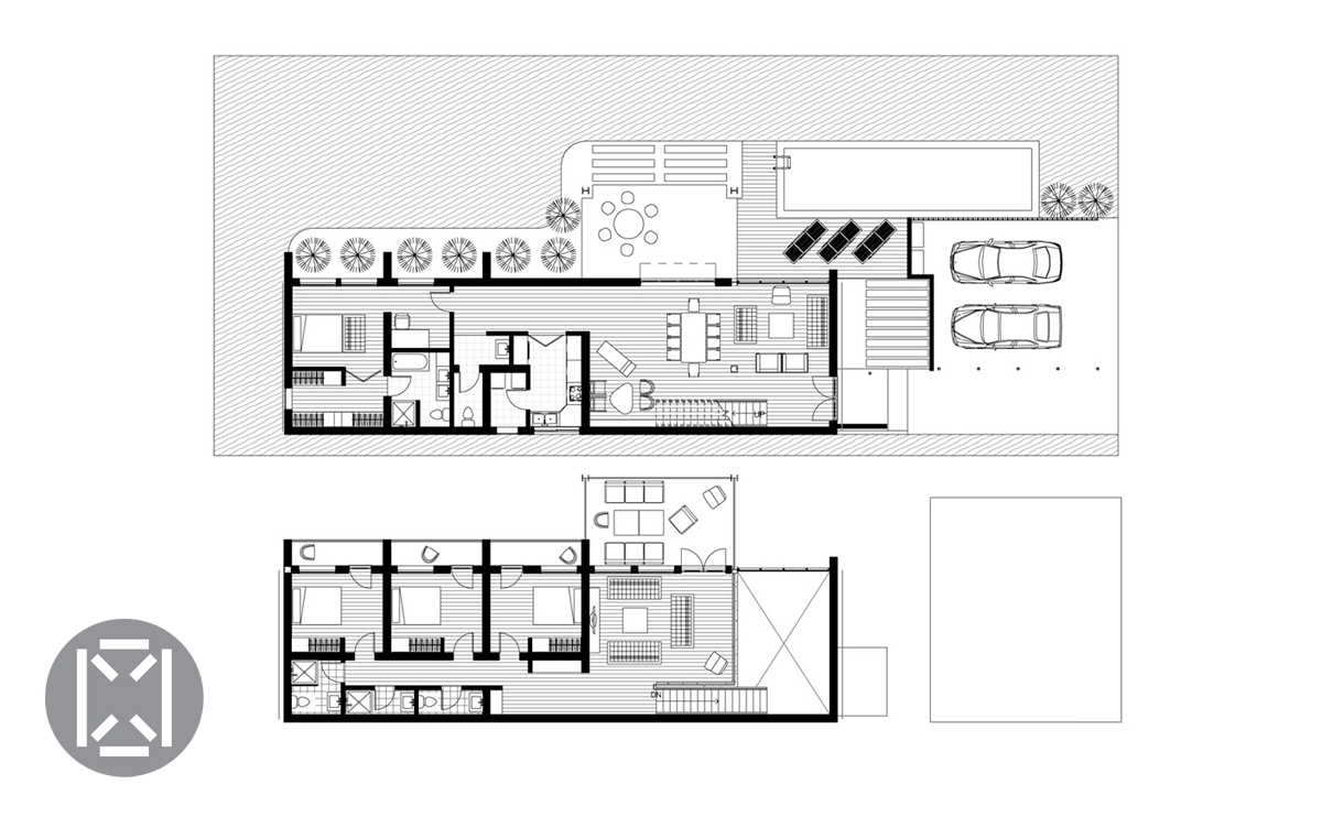
Villa Banalia is both a renovation and an adaptation of an old industrial storage building.
Formerly used as an office next to a warehouse, this renovation project maximizes its ideal location, its spacious structural layout and its longitudinal orientation compared to the old warehouse now used as a small assembly plant, the building is transformed into Perfect residence for the new owner in terms of proximity to the workplace and a contemporary home.
Strategically designed to maximize its salvaged structure, the house features a double-volume living area that includes a lounge, a dining room, and a library, the floating concrete slab houses the TV entertainment area that leads to its own shaded veranda, also used as an outdoor lounge in the tropics.
The entire south facade of the living room is glazed to bathe enclosed spaces with natural light in a city where electricity is not guaranteed every day from morning till night and to maximize the natural shade of the South, far from the hard tropical sun of the North.
The East and West facades are covered with green walls, an aesthetic touch symbolizing the great Congolian tropical forest, while improving the local thermal comfort.
Fiche du projet:
Villa Banalia est à la fois une rénovation et une adaptation d’un ancien bâtiment de stockage industriel.
Autrefois utilisé comme bureaux à côté d’un entrepôt, ce projet de rénovation maximise son emplacement idéal, son agencement structurel spacieux et son orientation longitudinale par rapport à l’ancien entrepôt maintenant utilisé comme une petite usine d’assemblage, le bâtiment se métamorphose en résidence parfaite pour le nouveau propriétaire en termes de proximité au lieu de travail et un habitat contemporain.
Stratégiquement conçu pour maximiser sa structure récupérée, la maison dispose d’un salon en double volume comprenant un salon, une salle à manger, une bibliothèque coiffée par une dalle en béton qui abrite l’espace de divertissement avec télévision qui mène vers son propre véranda ombragée qui est aussi utilisé comme un salon en plein air sous les tropiques.
L’ensemble de la façade Sud du salon est vitré pour baigner les espaces clos avec la lumière naturelle dans une ville où l’électricité n’est pas garantie chaque jour du matin au soir et pour maximiser l’ombre naturelle du Sud, loin du dur soleil tropical du Nord.
Les façades Est et Ouest sont couvertes de murs verts, une touche esthétique symbolisant la grande fôret tropicale Congolienne, tout en améliorant le confort thermique local.
Photos:








