Maison Bookoo in the Karoo

Project Profile:
The shape of the roof lines is an ode to the surrounding mountain range. Minimalized as a triangle and used throughout the house in the lighting, tiling, cupboard handles and various other elements.
The Karoo is a semi desert natural region of South Africa. It is partly defined by its topography, geology and climate, and above all, its low rainfall, arid air, cloudless skies, and extremes of heat and cold.
Briefed to create a home in the middle of a farmland on the “Little Karoo” side surrounded by the Swartberg Mountain range, the Maison Bookoo offers breath-taking panoramic views from all open living spaces.
Designed for a retiring lecturer desiring to spend his post-academic years writing in the company of his wife, the house is a compact concrete shelter cladded in wood inside; the choice of both materials are a response to above-mentioned harsh environment.
Although the annual average minimum and maximum temperatures are 9°C and 24°C respectively, the climate is one of extremes, and temperatures range from –15°C on the plateau in winter to over 40°C on the plains in summer.
The monolith concrete shell of the home is carefully sited in response to the topography of the farm in regard to the circulation on the site which is operating farm, air movement, sun exposure and views. Calculated to keep the heat out during the day and the cold out at night, the mass serves as a heat storage in that effect.
Great care was taken to diminish the physical impact of the home in such a demanding milieu, while at the same time endeavoring to create spaces that would serve as a backdrop to a peaceful life and reinforce the sacred connections to the tremendous mystical scenery.
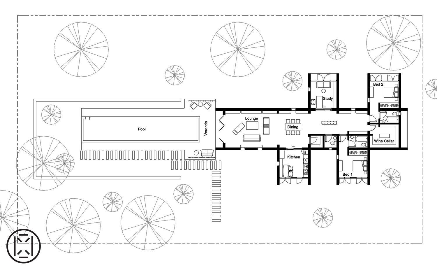
The home is divided in interconnected zones all using a single entrance. The main entrance of the plot guided the positioning of the house as its aligned with the main door. The outdoor space is a fenced oasis dominated by a pool with its shaded veranda, past the main entrance, the open plan living space is comprised of a lounge, a dining area, a storage room attached to the visitors’ powder room. The first right wing is occupied by the kitchen and its breakfast corner, the first left wing is the study, the second right wing is one bedroom with en-suite bathroom while the second left wing is the main bedroom with en-suite bathroom. The two bedrooms create a space at very back of the house which is the wine cellar built below grade with climate control.
The house is also home to hundreds of books collected over the years thus its name, House of Books in the Karoo. Books are treated as the initial inhabitants.
Fiche du projet:
La forme des lignes de la toiture est une ode à la chaîne de montagnes environnante. Minimisé sous forme de triangle et utilisé dans toute la maison pour les lampes, le carrelage, les poignées d'armoires et divers autres éléments.
Le Karoo est une région naturelle semi-désertique d'Afrique du Sud. Elle est en partie défini par sa topographie, sa géologie et son climat, mais surtout par ses faibles précipitations, son air aride, ses cieux sans nuages et ses extrêmes de chaleur et de froid.
Conçue pour créer une maison au milieu d'une terre agricole du côté du «Petit Karoo» et entourée par la chaîne de montagnes Swartberg, la Maison Bookoo offre une vue panoramique à couper le souffle depuis tous les espaces de vie ouverts.
Le client est un enseignant bientôt à la retraite qui souhaite passer ses années post-universitaires à écrire en compagnie de son épouse, la maison est un abri en béton compact recouvert de bois à l’intérieur; le choix des deux matériaux est une réponse au dur environnement susmentionné.
Bien que les températures minimales et maximales moyennes annuelles soient respectivement de 9 ° C et 24 ° C, le climat est extrême et varie de -15 ° C sur le plateau en hiver à plus de 40 ° C dans les plaines en été.
La coque en béton monolithique de la maison est soigneusement située en réponse à la topographie de la ferme en ce qui concerne la circulation sur le site qui est une ferme encore exploitée, le mouvement de l'air, l'exposition au soleil et les vues. Calculée de manière à maintenir la chaleur dehors durant la journée et le froid dehors durant la nuit, la masse sert de conservateur de chaleur à cet effet.
Un soin particulier a été pris pour réduire l'impact physique de la maison dans un milieu aussi exigeant, tout en cherchant à créer des espaces qui serviraient de toile de fond à une vie paisible et renforceraient les liens sacrés avec l'immense paysage mystique.
La maison est divisée en zones interconnectées, toutes utilisant une seule entrée. L'entrée principale de la parcelle a guidé le positionnement de la maison avec l'alignement de la porte principale. L'espace extérieur est une oasis clôturée dominée par une piscine avec sa véranda ombragée.
L'espace de vie ouvert comprend, après l'entrée principale, un salon, une salle à manger, un espace de rangement attenant à la salle d'eau des visiteurs. La première aile droite est occupée par la cuisine et son coin petit-déjeuner, la première aile gauche est le bureau, la deuxième aile droite est une chambre avec salle de bain privée, tandis que la deuxième aile gauche est la chambre principale avec aussi une salle de bain privée. Les deux chambres créent un espace très à l'arrière de la maison qui est la cave à vin construite en sous-sol avec contrôle du climat.
La maison abrite également des centaines de livres rassemblés au fil des ans, d'où son nom, Maison du Livre dans le Karoo. Les livres sont traités comme les premiers habitants.












